このページを印刷する
- 価格
-
8,780万円
- 間取
-
3LDK
| 所在地 | 東京都大田区石川町2丁目 |
|---|---|
| 建物名 | 石川町2丁目新築戸建 |
| 交通 |
|
| 築年月 | 新築/中古 | 新築 | |
|---|---|---|---|
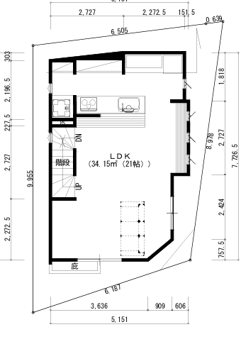
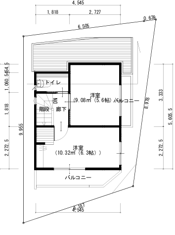
| 面積 | 97.09m²(29.36坪) | 計測方式 | 壁芯 |
| バルコニー | 向き | ||
| 建物階数 | 地上3階 | 所在階 | |
| 部屋番号/区画番号 | --- | 総戸数/総区画数 | 2 |
| 建物構造 | 木造 | ||
| 間取内容 | 洋室5.1帖 1階 LDK21帖 2階 洋室6.3帖 3階 洋室5.6帖 3階 | ||
| 駐車場 | 取引態様 | 仲介 | |
| 引渡/入居時期 | 相談 | 現況 | 未完成 |
| 地目 | 宅地 | 用途地域 | 第一種中高層住居専用 |
| 都市計画 | 市街化区域 | 地勢 | 平坦 |
| 土地面積 | 60.96m²(18.44坪) | 土地面積計測方式 | 公簿 |
| 私道負担面積 | 28.12m²(8.5坪) | ||
| セットバック | 有 | セットバック面積 | 14.3m² |
| 建ぺい率 | 60% | 容積率 | 200% |
| 土地権利 | 所有権 | 接道状況 | 角地 |
| 接道方向1 | 東 | 接道間口1 | 8.9m |
| 接道種別1 | 私道 | 接道幅員1 | 3.8m |
| 位置指定道路1 | |||
| 接道方向2 | 南 | 接道間口2 | 6.1m |
| 接道種別2 | 私道 | 接道幅員2 | 3.4m |
| 位置指定道路2 | |||
| 国土法届出 | 不要 | ||
| 周辺環境 | |||
| 設備・条件 |
|
||
| 学区 |
小学校
中学校
|
||
| 自社物 | 先物 | 状態 | 売出中 |
| 物件番号 | 5901 | ||
| 情報登録日 | 2026年1月9日 | 情報更新日 | 2026年1月9日 |
物件掲載内容と現況に相違がある場合は現況を優先といたします。



















